Horseshoe Bay, pitoresk bir koya ve tamamen bakımlı bir plaja doğrudan ve özel erişimi olan sahil villaları içeren benzersiz bir gelişmedir.
Bu muhteşem evlerin her biri, üç ila yedi yatak odalı konfigürasyonlar, mimariyle bütünleşen 70 m2’lik bir sonsuzluk havuzu ve isteğe bağlı müstakil bir misafirhane ile müşterinin özelliklerine göre özel olarak inşa edilmiştir.
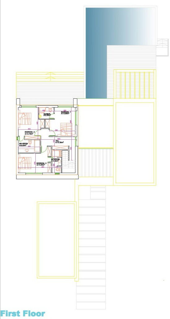
3 yatak odalı villa 200 m2 - Kat planı
6 yatak odalı villa 350 m2 - Kat planı
BİZE YAZIN
Mesajınızı Bize Göndermekten Çekinmeyin
Denounce with righteous indignation and dislike men who are beguiled
and demoralized by the charms pleasure moment so blinded desire that
they cannot foresee the pain and trouble.